本文修订于 2022-10-05 请核对首次阅读时间
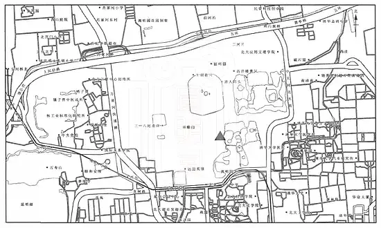
2009年5月2日—5月9日,为了对地下文物进行保护,北京市文物研究所对圆明园正觉寺周边区域进行了考古勘探(图一)。现将本次勘探情况报告如下∶
一、地理位置
圆明园四宜书屋遗址位于海淀区的西北部,圆明园绮春园的南部,南邻湛清轩的北岸,西邻北京市一〇一中学学生宿舍区。

二、探孔地层
根据土质、土色和包含物的差异,可将探区内的地层堆积情况自上而下分为三层∶
第1层∶0—0.6米,渣土层,内含大量残砖、石块等建筑垃圾。
第2层∶0.6—1.1米,褐色土层,呈浅褐色,土质疏松,内含砖渣等物。
第3层∶1.1—1.6米,褐色土层,呈黄褐色,土质稍硬,内含沙及锈斑。
3层以下为生土层。
支付 ¥99999 解锁本节剩余80%的内容*
*如遇金额全部为[9]表示该资源仅支持「小程序端」!本文版权归发布者 @圆明园事务总管 所有,内容不代表本站立场。
本文带有Google AdSense标识的推广,已过滤敏感信息,但仍请辨认真伪。
本站转载文章仅代表原作者观点,不代表本站立场,图文版权归原作者所有。本站文章及图片如有侵权,请点击右侧菜单,联系我们删除。

