受北京市文物局的委托,北京市文物研究所于2007年6月2日—7月25日,对圆明园内天心水面遗址区建设保护工程范围内进行了文物勘探工作。现将此次勘探工作情况汇报如下:
一、地理位置
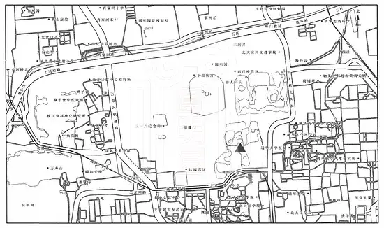
勘探工作范围主要在圆明园内的南部,鉴碧亭的北部,东邻现圆明园管理处,属临水建筑,四面环水,并用石条及石块包边,呈南北向分布。在该区的东北部、西南部和东南部分别有三座假山及一处现房,东北部和西北部分别有一座铁桥,另在西北部有两处现代基础。南北长 43—86 米,东西宽12—81米,勘探面积约为5872平方米(图一)。

受北京市文物局的委托,北京市文物研究所于2007年6月2日—7月25日,对圆明园内天心水面遗址区建设保护工程范围内进行了文物勘探工作。现将此次勘探工作情况汇报如下:
一、地理位置
勘探工作范围主要在圆明园内的南部,鉴碧亭的北部,东邻现圆明园管理处,属临水建筑,四面环水,并用石条及石块包边,呈南北向分布。在该区的东北部、西南部和东南部分别有三座假山及一处现房,东北部和西北部分别有一座铁桥,另在西北部有两处现代基础。南北长 43—86 米,东西宽12—81米,勘探面积约为5872平方米(图一)。
